Pourquoi dessiner le plan 2D de votre bâtiment /terrain ?
Le BIM 3D permet de gérer de manière optimale toutes les phases de vue d’un bâtiment : conception, construction, rénovation, gestion et exploitation. Cet outil de travail moderne, efficace et collaboratif vous offre les nombreux avantages suivants :
Planifier et concevoir des travaux intérieurs et/ou extérieurs
Que ce soit pour une extension, une rénovation ou encore l’aménagement de votre espace intérieur, le plan 2D constitue la base pour créer et organiser votre projet avec efficacité, en tenant compte des contraintes réelles.
Simplifier les transactions immobilières
Les plans de niveau (ou d’étage) et les différents plans de surface (Surface de plancher, surface utile, gross leasing area, etc.) sont essentiels pour permettre une meilleure visualisation de l’existant et ainsi rendre objectives les transactions de patrimoine immobilier les futurs acquéreurs.
Optimiser la gestion d’actifs immobiliers
La gestion des baux, l’entretien et la maintenance d’un bien sont grandement améliorés grâce à la mise à disposition de différents plans : plans d’étage, plans de coupe, plans de façade ou de toiture, etc.

Notre gamme complète de plans 2D à haute précision
En fonction de votre projet, vous pouvez avoir besoin d’un ou plusieurs dessins techniques.
Plan de masse
Souvent utilisé pour des dossiers de permis de construire ou d’aménagement, cette vision d’ensemble d’un terrain détaille les différentes implantations : constructions, voies d’accès, places de stationnement, réseaux ou encore végétation.
Plan de coupe
Cette vue en coupe verticale permet de visualiser l’intérieur d’un bâtiment ou d’un terrain : hauteurs des planchers, épaisseurs, niveaux, pentes, etc.

Plan topographique
Largement exploitée dans la construction ou dans l’aménagement, cette représentation 2D d’un terrain indique les éléments naturels, les niveaux et fils d’eau, le bâti, les limites de propriété apparentes, le mobilier urbain, la signalisation, les affleurants des réseaux, les courbes de niveau, etc.

Plan de surface
Ce plan 2D permet de visualiser les pièces ou les zones en calculant leur surface dédiée selon la/les définition(s) souhaitée(s). Il peut s’agir d’un plan de surface utile, de surface habitable, de superficie privative (carrez), de surface de plancher, de surface commerciale ou industrielle ou encore d’un plan de vente illustrant des aménagements.
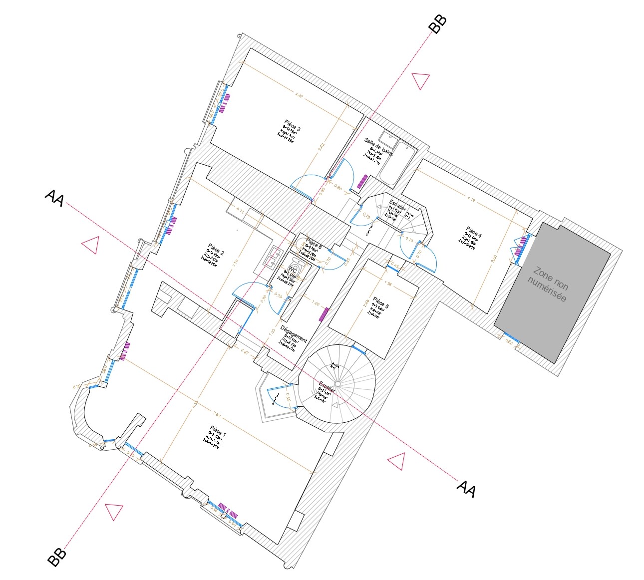
Plan de niveau
Très sollicité par les architectes ou les promoteurs immobiliers, ce dessin en vue horizontale représente un niveau ou un étage d’un bâtiment ; et montre la disposition des pièces, murs, ouvertures (portes, fenêtres), escaliers, etc.
Il peut être complété des points de livraison d’énergie, sanitaires, terminaux et réseaux CVC et électriques, composants techniques divers, etc.
Ce plan en vue horizontale peut aussi concerner la/les toiture(s), les édicules en toitures terrasses, auquel cas on préfèrera les termes de “plan de toiture” ou de plan des édicules.


Plan de façade
Cette vue de façade d’un immeuble est souvent utilisée pour représenter les niveaux, faîtages, baies et menuiseries, descentes d’eau pluviales, matériaux, etc.

Le plan 2D, l’indispensable de votre projet
Le plan 2D, en tant que représentation précise de l’existant offre de nombreux avantages pour optimiser votre projet de construction ou d’aménagement.
Dossier d’urbanisme
Vous disposez d’informations sur l’existant à intégrer aux pièces graphiques de votre demande d’urbanisme. Par exemple les plans des façades existantes en vue d’une demande d’autorisation d’isoler par l’extérieur la bâtiment (ITE).
Plans projets
La version numérique des plans permet aux architectes, bureaux d’études, maîtres d’œuvre, entreprise de travaux, de réaliser différentes options concernant le projet et de s’appuyer notamment sur les contraintes existantes et notamment la structure des bâtiments et de poursuivre avec des plans d’exécution.
Précision et fiabilité
La qualité et la précision des informations du plan 2D permettent de réaliser les études techniques et de faisabilité les plus efficaces possibles et ainsi de limiter au maximum les erreurs.
Expertise
+ 250 K m² numérisés par an
Sur mesure
Adapté aux objectifs et aux contraintes de votre projet

Qualité
Maîtrise des technologies de capture et des logiciels DAO
Efficacité
Plans 2D livrés sous 10 à 15 jours ouvrés
Les 4 étapes de la conception d’un plan 2D
Notre équipe vous accompagne tout au long de la conception de vos plans 2D ou scan to plan.
- Étude votre projet : en fonction de votre demande ou de votre cahier des charges, nos experts organisent la prestation la plus adaptée à vos besoins.
- Réalisation du nuage de points 3D : sur site, un géomètre effectue le relevé 3D des données des espaces, qui servira à la création du nuage de points.
- Conception du plan 2D : grâce au nuage de points 3D, nos concepteurs réaliseront chaque plan 2D (horizontal ou vertical) correspondant via le logiciel de DAO (Dessin Assisté par Ordinateur) AutoCAD.
- Restitution du plan à haute précision : vos plans 2D finalisés sont livrés au format numérique de votre choix (DWG ou DXF) et mises en page format PDF.
- Évolution possible vers une maquette 3D ou une maquette BIM : grâce au logiciel Revit et aux nuages de points 3D, votre plan 2D est transformé en maquette 3D. La collecte et l’intégration de données complètera la transition vers une maquette BIM.
FAQ – plans 2D
Un plan 2D est une représentation graphique d’un bâtiment, en deux dimensions (longueur et largeur). Il permet de visualiser la disposition des éléments comme les murs, les ouvertures, les pièces ou les équipements, sans tenir compte de la hauteur ou du volume.
C’est un outil essentiel en architecture et en construction pour communiquer les dimensions et l’organisation spatiale d’un projet.
Il est tout à fait possible de produire des plans 2D à partir d’un relevé 3D. Une fois le nuage de points obtenu, les données peuvent être traitées et converties en vues orthogonales (plans de coupes, de façades, etc.) grâce à des logiciels spécialisés.
Cela permet de générer des plans précis, fidèles à la réalité, tout en évitant les erreurs de mesure ou d’interprétation souvent associées aux relevés manuels.
Pour créer des plans 2D, on peut utiliser des logiciels de dessin assisté par ordinateur (DAO) comme AutoCAD ou Revit, en partant d’un relevé 3D transformé en vues orthogonales.
Il s’agit alors de tracer les éléments architecturaux (murs, ouvertures, équipements, etc.) selon les dimensions relevées, en respectant les conventions graphiques et les échelles adaptées au projet.
Il est possible de transformer un plan 2D en maquette 3D en utilisant des logiciels de modélisation. Le plan sert alors de base pour donner forme aux éléments (murs, cloisons, ouvertures…) et construire un modèle volumétrique, auquel on peut ensuite ajouter des détails techniques et des informations BIM selon les besoins du projet.
Pour en savoir plus, découvrez notre article dédié à la transformation d’un plan 2D en maquette 3D.




